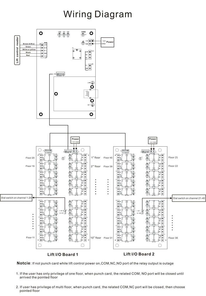
ACS-DT20:one to more Controller(Elevator/lift) บอร์ดควบคุมลิฟท์


-card capacity 20000
-Log capacity 100000
-Communications TCP/IP
-The largest networking sets unlimited
-Input 1 Wiegand 26 bit (34 bit, etc.) format card reader or other biometric device
-Fire signal input 1
-Power supply DC12V
-Output 20 ways


 
 

ระบบควบคุมลิฟท์  สำนักงาน คอนโด


-ใช้บัตรทาบ RFID ในการเข้าออกลิฟท์ 

-สามารถกำหนดชั้นในการในงาน แต่ละบัตรได้ 

-ประยุกต์ใช้กับระบบ scan แบบอื่นๆ เช่น Finger Scan , QR, Face recognition 

-สามารถใช้กับ สายสัญญาณ หรือ ใช้แบบไร้สายได้ 


• Only Authorised people use elevator.
• Secured and safe.
• Faster and easy floor selection with  a card.
• Flexibility to move from floor to floor.
• Controls access / use of elevator by time of day and day of week(e.g. No restriction during
daytime and controlled usage by night.)
• All / selected floors can be access controlled.
• Selected floor can be Deactivated during certain hours. (e.g. during public functions, parties,
etc.)
• Simple electrical interface to any elevator.
• Power saving as un-necessary landing calls are avoided.
• Landing A/C optional
• Suitable for Duplex Elevator Controller
• Recording of elevator usage by cardholder with date and timestamp 
• Every Transaction stored with date & time stamp

• Access by Card/ Card + PIN/ finger


 

Odoo text and image block